Beschrijving
Welkom bij deze karakteristieke vrijstaande woning aan het Oud Kerkpad 3 in Schijf.
De woning is fraai gelegen in het centrum van Schijf op een ruim perceel met een keurig onderhouden tuin.
De ruime woning is geheel "onderkelderd" met een o.a. een garage, grote bergruimte die in gebruik was als werkplaats maar die je natuurlijk ook als bijv kantoorruimte of speelkamer of hobbyruimte kunt inrichten, Verder is de woning voorzien van 3 slaapkamers en een badkamer op de verdieping en de woning heeft een aangebouwde serre.
Indeling:
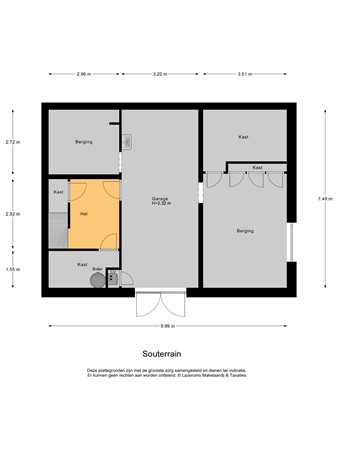
Souterrain:
Als je met de auto de oprit op draait dan kun je naar beneden rijden en via de openslaande garagedeuren rij je dan zo de onder de woning gelegen garage binnen. De garage is in het midden onder de woning gelegen en aan de rechter en linker zijde zijn diverse bergruimtes die je voor allerlei doeleinden kunt gebruiken. De grootste, aan de rechterzijde, was nu in gebruik als werkplaats maar daar zou je natuurlijk ook bijv. een kantoor of speelkamer voor de kids of een echte mancave van kunnen maken. Aan de linkerzijde van het souterrain is de trapopgang naar boven, ook een bergruimte, met nu plaats voor een vrieskist en extra koelvriescombi, en de ruimte met de technische installatie (elektrische boiler en hete lucht verwarmingsinstallatie) In de garage vind je bij de openslaande deuren de meterkast die voorzien is van 9 groepen.
Aangezien er op de oprit ook nog plaats genoeg is om te parkeren zou je de huidige garage natuurlijk ook geheel anders in kunnen richten samen met de rest van het souterrain.
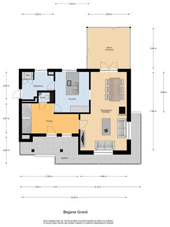
Entree:
Als je de auto op de oprit hebt geparkeerd kun je aan de linkerzijde van de woning via een trapje naar het balkon en van daaruit naar de voordeur. Of je loopt via de poort naar de zijkant van de woning en gaat daar via een trapje omhoog naar de zijdeur die toegang geeft tot de bijkeuken.
Via de voordeur kom je in de ruime hal met vide. De hal geeft weer toegang tot de toiletruimte, trapopgang naar de verdieping, de keuken en de woonkamer. De hal is voorzien van schoon metselwerk muren en plavuizen op de vloer en heeft een fraaie houten voordeur en houten kozijnen met enkel glas die wel voorzien zijn van voorzetramen.
De toiletruimte heeft een hangend closet en fonteintje. De vloer en muren zijn geheel betegeld.
Woonkamer:
Vanuit de hal kun je rechtstreeks naar de knusse woonkamer. De woonkamer van ca. 30m2 is voorzien van een houten vloer, geverfde wanden en een balken plafond. Verder heeft de woonkamer een pellet kachel en openslaande deuren naar de serre. De ramen zijn voorzien kunststofkozijnen met HR glas. Vanuit de woonkamer loop je zo de serre in waarin het natuurlijk al vanaf vroeg in het voorjaar tot laat in het najaar heerlijk vertoeven is met een prachtig zicht op je eigen achtertuin De serre is van aluminium delen met dubbel glas en een schuifdeur aan de voorzijde en aan de zijkant en kunststof dakplaten waarvan een gedeelte open kan. De serre van ca 15m2 is ook voorzien van elektrische screens aan de bovenzijde en van dezelfde houten vloer als in de woonkamer dus de serre is echt een verlengstuk van de woonkamer
Keuken:
Vanuit de woonkamer en vanuit de hal heb je toegang tot de keuken. De keuken van ca 12m2 heeft een hoge kastenwand met daarin de koelkast, een heteluchtoven en diverse opbergkasten. Er is ook een groot schiereiland met een houten blad met kunststof toplaag met daarin verwerkt een 5 pits gaskookplaat en een een 1 !/4 spoelbak met mengkraan. 1 zijde van het eiland is voorzien van opberglades en de andere zijde is voorzien van een afwasmachine en opbergkasten.
Boven het eiland hangt de afzuigkap die eventueel ook met een afstandsbediening is te bedienen.
De keuken zelf is voorzien van gestucte en geverfde muren en behang, een verlaagd plafond met spotjes en een tegelvloer.
Vanuit de keuken is er toegang tot de bijkeuken. De bijkeuken heeft ook een werkblad met onderkasten en een hoge kast met daarin oa de omvormers van de zonnepanelen. De bijkeuken heeft geverfde wanden en een tegelvloer en via de bijkeuken kun je weer aan de zijkant van de woning naar buiten.
Verdieping:
Vanuit de hal ga je een vaste trap naar de verdieping. Je kom dan op de overloop met een houten balustrade is afgescheiden van de vide en waar overheen je een mooi zicht hebt op de hal beneden. De overloop geeft toegang tot de 3 slaapkamers en de badkamer en heeft schoon metselwerk wanden en een houten schroten plafond/
Slaapkamer 1: Deze slaapkamer van ca 15,5m2 is gelegen aan de voorzijde van de woning en heeft een verhoogde vloer, de vloer is voorzien van laminaat en heeft behangen wanden en plafond. Verder is deze kamer voorzien van een dakkapel met kunststof kozijnen en HR glas.
Slapkamer 2: Deze slaapkamer van ca. 13m2 vloeroppervlakte is aan de achterzijde gelegen en is voorzien van een laminaatvloer, behangen wanden en een gestukt en geverfd plafond. Deze kamer heeft een houten raamkozijn met enkel glas en een voorzetraam.
Slaapkamer 3: Deze slaapkamer van ca. 7,3m2 vloeroppervlakte is gelegen aan de achterzijde van de woning en is voorzien van een laminaatvloer, behang op de wanden en een gestukt en geverfd plafond. Verder heeft deze kamer nog een vaste ingebouwde kastenwand en een dakkapel met een kunststof kozijn en HR glas.
Badkamer: De badkamer van ca. 8,4m2 vloeroppervlakte is aan de achterzijde van de woning gelegen en heeft een douchecabine, ligbad met handdouche, staand closet en een wastafel met wastafelmeubel. Verder heeft de badkamer een afzuiging op het lichtnet, een elektrische straalkachel, is geheel betegeld en heeft een kunststof dakkapel met HR glas.
Vanuit de overloop is er ook toegang tot de vliering met een vlizotrap.
Buiten:
De woning heeft een ruime oprit aan de rechterzijde en een siertuin aan de linkerzijde. De tuin loopt aan de zijkanten van de woning door naar de achtertuin. De achtertuin is vanuit de woning te bereiken dmv de schuifpui in de serre of via de deur aan de zijkant van de woning. Je komt in beide gevallen eerst op het verhoogde terras dat op dezelfde hoogte ligt als de begane grond van de woning. Je kunt dan via verschillende trapjes naar de lager gelegen achtertuin.
De achtertuin is keurig onderhouden en voorzien van een grasveld, volwassen plantenborders, een vijver met een waterval, een tuinkas en een houten tuinhuis/berging met daaraan vast een houten overkapping waar je in de zomer heerlijke uurtjes kunt doorbrengen.
Aan de zijkant van de woning hangen 6 zonnepanelen aan de muur en aan de achterzijde van de woning ook 1 paneel aan de muur. Op de overkapping ligt ook nog een zonnepaneel en er zijn 3 zonnepanelen op verrijdbare wagentjes zodat die altijd een plekje in de zon kunnen hebben want die kun je gewoon met een verlengkabel op een stopcontact aansluiten.
De woning heeft dus in totaal 11 zonnepanelen.
Algemeen:
- Keurig onderhouden vrijstaande woning
- Inpandige garage
- Oprit voor meerdere auto's
- Grotendeels kunststof kozijnen met HR glas
- Serre
- Verdiepingsvloer souterrain en begane grond van beton
- Verdiepingsvloer 1e en 2e verdieping van hout
- Verwarming gehele woning middels hete luchtverwarming.
- Warm water via een elektrische boiler
- Zonnescherm aan achterzijde bij keuken
- 11 Zonnepanelen
Graag nodigen we je uit voor een bezichtiging van deze karakteristieke woning.