Beschrijving
Welkom bij deze instapklare, moderne en energiezuinige hoekwoning met zonnepanelen, drie volwaardige woonlagen en een fraai aangelegde tuin met overkapping gelegen aan de gewilde Leurse Branden in Etten-Leur. De woning is instapklaar, uitstekend onderhouden en hoogwaardig afgewerkt met oog voor detail. Met vijf slaapkamers, een stijlvolle keuken, een luxe badkamer en een verrassend ruime zolderverdieping biedt deze woning alle comfort voor een modern gezin.
Begane grond
Via de verzorgde voortuin kom je binnen in de lichte hal met toegang tot het toilet, de meterkast, de warmtepomp en de trapopgang naar de eerste verdieping. De woonkamer van ca. 37m2 is ruim en licht dankzij de grote openslaande deuren naar de tuin. De pvc vloer, moderne wandafwerking met houten lattenwand en neutrale tinten zorgen voor een sfeervolle en eigentijdse uitstraling.
Aan de voorzijde van de woning bevindt zich de moderne open keuken in hoekopstelling en een hoge kastenwand. De keuken van ca 10m2 is uitgevoerd in een stijlvolle, donkere kleurstelling met een strak werkblad en beschikt over hoogwaardige inbouwapparatuur, waaronder een inductiekookplaat, WAVE afzuigkap, vaatwasser, 11/4 spoelbak met cookerkraan en grote lade's en opbergkasten. De kastenwand is voorzien van een koelvriescombi, combimagnetron, oven en opbergruimte. De grote raampartij aan de voorzijde zorgt voor veel natuurlijk lichtinval, wat de keuken een fijne plek maakt om te koken en te leven.
Eerste verdieping
De eerste verdieping biedt drie slaapkamers en een badkamer. De kamers zijn stuk voor stuk licht en praktisch in te delen. De gehele 1e verdieping, behalve de badkamer, is voorzien van dezelfde pvc vloer als op de begane grond. De badkamer is modern en luxe uitgevoerd met een inloopdouche, ligbad, dubbele wastafel met meubel en tweede toilet. De rustige kleuren en hoogwaardige afwerking maken dit een heerlijke plek om te ontspannen.
Tweede verdieping
De tweede verdieping is verrassend ruim en goed doordacht. Hier bevinden zich nog twee slaapkamers, waarbij de slaapkamer aan de voorzijde is voorzien van dakramen die zorgen voor een prettige lichtinval. Daarnaast is er op de overloop ruimte voor de wasmachine en droger, evenals de opstelling van de wtw-installatie. Deze verdieping biedt volop mogelijkheden voor logeerkamers, een hobbyruimte of een extra kantoor aan huis. Ook deze verdieping is voorzien van dezelfde pvc vloer.
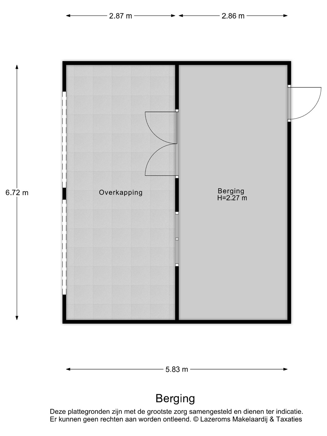
Tuin
De achtertuin is verzorgd aangelegd met een combinatie van bestrating en groen, en beschikt over verhoogde plantenbakken. Achter in de tuin bevindt zich een ruime overkapping die volledig afsluitbaar is. Hier kunt u heerlijk beschut zitten en optimaal genieten van het buitenleven, ongeacht het weer. Achter de overkapping is de ruime berging die is opgetrokken uit betondelen (achterzijde in houtlook) Het plafond en de wanden van de berging zijn ook geisoleerd. De tuin is bereikbaar via de achterom en biedt veel privacy. De woning heeft ook nog een elektrisch zonnescherm aan de achterzijde en is ook al voorzien van 20 zonnepanelen.
Bijzonderheden:
• Hoekwoning met veel lichtinval en privacy
• 129m2 woonoppervlakte
• Vijf slaapkamers
• Luxe badkamer en moderne keuken
• Instapklaar
• Geheel voorzien van vloerverwarming (ook op de 2e verdieping) die in de zomer ook kan koelen
• Voorzien van een warmtepomp
• 20 zonnepanelen
• Houten kozijnen met HR++ glas
• Energielabel A+++
• Fraai aangelegde tuin met overkapping en berging
• Gelegen in een kindvriendelijke, rustige buurt nabij scholen, winkels en uitvalswegen
Kortom, Leurse Branden 31 is een moderne, energiezuinige en perfect afgewerkte woning waar comfort, stijl en functionaliteit samenkomen. Een ideale gezinswoning op een fantastische locatie in Etten-Leur. Maak snel een afspraak voor een bezichtiging en ervaar zelf het wooncomfort dat deze woning te bieden heeft.