Beschrijving

Welkom bij deze leuke 2-onder-1 kap woning aan de Rucphensebaan 1 E in Sprundel.
Ben jij op zoek naar een ruime, goed afgewerkte 2-onder-1 kap woning met eigen garage? Dan is dit echt iets voor jou.
Hier kun je heerlijk kokkerellen in de luxe open keuken (2021) met spoeleiland en daarna lekker relaxen in de ruime woonkamer of met goed weer lekker eten en relaxen onder de overkapping (2021).
Op de 1e verdieping zijn 2 ruime slaapkamers en een heerlijke badkamer (2024) met ligbad, inloopdouche en dubbele wastafel. De 2e verdieping is nu mede door de grote dakkapel (2024) een grote open ruimte waar je met gemak een hele ruime 3e slaapkamer van kunt maken.

Indeling:
Begane grond:
Je parkeert hier je auto aan de achterzijde van de woning en loopt dan langs de zijkant van de garage naar de voorzijde van de woning waar je via de voordeur in de ruime hal komt. De hal geeft toegang tot het toilet, de meterkast en de woonkamer.
De hal is netjes afgewerkt met strak gestukte wanden en plafonds. De meterkast is voorzien van 8 groepen en 2 aardlekschakelaars. Het toilet heeft een tegelvloer en tot halverwege betegelde wanden en de rest van de wanden is voorzien van spuitwerk net als het plafond. Het toilet is voorzien van een hangend closet en een fonteintje.
Woonkamer:
Vanuit de hal kom je in de ruime woonkamer van ca 45m2 met aansluitend de open keuken van ca 7m2.
De woonkamer en de hal zijn voorzien van dezelfde tegelvloer (2021) zodat dit mooi één geheel is. De wanden en het plafond van de woonkamer zijn strak gestukt.
Vanuit de woonkamer heb je toegang tot de voorraadkast onder de trap en de trapopgang naar de 1e verdieping. De deuren van de trapopgang, trapkast en de hal zijn alle drie voorzien van fraaie draaiende "barndoors" wat het geheel een mooie uitstraling geeft.
Vanuit de woonkamer loop je zo de open keuken uit 2021 in. De keuken staat in een rechte opstelling tegen de wand en daar tegenover is een spoeleiland.
Op deze manier heb je tijdens het werk in de keuken toch nog fijn contact met je huisgenoten of met je gasten. De rechte opstelling tegen de wand is voorzien van 2 hoge kasten met daarin een combi magnetron en een koelkast en het lage gedeelte is voorzien van een werkblad van beton met in het midden een groot 6-pits fornuis met een grote pelgrim oven en er boven een vlakafzuigkap. Tegenover het rechte gedeelte staat het spoeleiland met een betonnen werkblad met in het midden een vierkante spoelbak met kokend water kraan en aan de onderzijde 2 opbergkasten en een vaatwasser. 
Vanuit de keuken heb je via een loopdeur toegang tot de achtertuin. De begane grond is voorzien van kunststof kozijnen met dubbel glas en rolluiken.
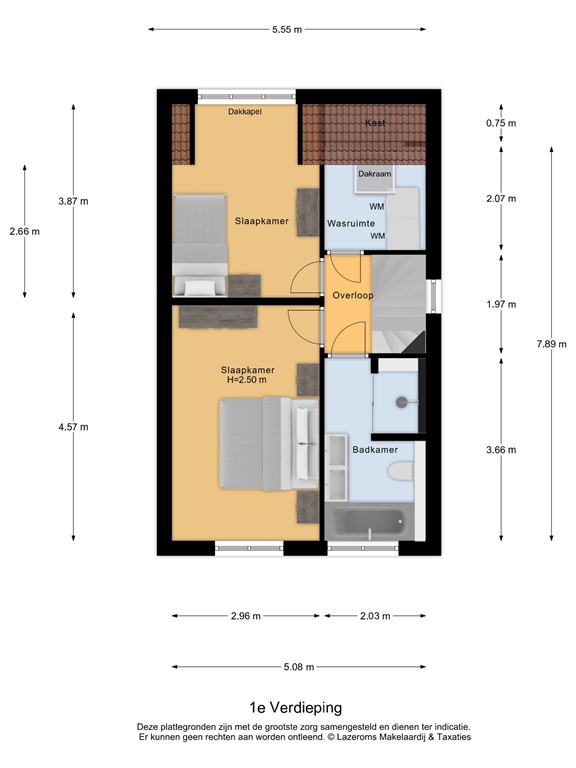
Eerste verdieping:
Via de vaste trapopgang in de woonkamer kom je op de overloop van de eerste verdieping. De overloop geeft toegang tot 2 slaapkamers, een waskamer en de badkamer (2024). 
Slaapkamer 1: Deze slaapkamer van ca. 14m2 is aan de voorzijde van de woning gelegen en is voorzien van een nette laminaatvloer, strak gestukte wanden, een gespoten plafond, kunststof kozijnen met dubbel glas en ventilatierooster en een radiator.
Slaapkamer 2; Deze slaapkamer met vloeroppervlakte van ca. 12m2 is aan de achterzijde van de woning gelegen en is voorzien van dezelfde nette laminaatvloer, gestukte en behangen wanden, een gespoten plafond, een dakkapel met kunststof kozijn en dubbel glas en een radiator.
Wasruimte: Deze kamer van ca 4m2 was oorspronkelijk de badkamer en is nu omgevormd tot wasruimte(2024). De kamer is voorzien van een mooi opbergmeubel met daarin de wasmachine en de droger. Verder is deze ruimte voorzien van een laminaatvloer, strak gestukte wanden en plafond, een houten dakraam met dubbel glas en een radiator.
De badkamer van ca 7m2 is aan de voorzijde gelegen en was oorspronkelijk de 3e slaapkamer op deze verdieping. De badkamer is voorzien van een tegelvloer de wanden zijn gedeeltelijk betegeld en gedeeltelijk mooi strak gestukt en geverfd. De badkamer is voorzien van een ruime inloopdouche met stortdouche en handdouche, een hangend closet, ligbad met handdouche, een brede dubbele wastafel met meubel er onder en een grote spiegel met verlichting erboven. Alle kranen van de douche en het bad zijn netjes in de muur verwerkt. De badkamer heeft ook een elektrische radiator, een strak gestukt plafond en een kunststof kozijn met dubbel glas. 
De 1e verdieping is aan de voor en achterzijde ook voorzien van rolluiken.
Tweede verdieping:
Via de vaste trapopgang  kom je op de tweede verdieping. De tweede verdieping is nu een grote open ruimte met naast de trapopgang de opstelplaats voor de CV-ketel en aan de andere kant van de trapopgang de mechanische afzuigunit. Verder zijn er bij de CV ketel ook de aansluitpunten voor een wasmachine dus die kan eventueel ook nog op zolder staan. De 2e verdieping is voorzien van een laminaatvloer en de wanden zijn strak gestukt. Door de grote dakkapel die geplaatst is in 2024 heeft de 2e verdieping een groot woon oppervlakte van maar liefst 19m2. Hier is dus ruimte genoeg om er een 3e grote slaapkamer van te maken of een grote hobbykamer of werkplek aan huis, net wat je voorkeur heeft. De dakkapel is strak gestukt en voorzien van kunststof kozijnen met HR++ glas en horren. Het dak is afgewerkt met geïsoleerde dakplaten. De dakkapel heeft ook een elektrisch bediend rolluik. Het dak aan de achterzijde heeft een houten dakraam met dubbel glas en verduisteringsscherm. De CV-ketel is een Remeha Tzerra AceMatic 28C uit 2024.
Garage:
De garage van ca 16m2 is aan de zijkant van de woning gelegen en is bereikbaar vanuit de achtertuin met een loopdeur of via de elektrische garagedeur.
De garage is voorzien van een betonvloer, kalkzandstenen muren, elektra en water. Er is een uitstortbak en er zijn  aansluitingen voor een wasmachine.
Via de openslaande deuren in de schutting aan de achterzijde kun je met je auto of motor zo de garage in rijden. 
Ruin:
De achtertuin is op het Zuidoosten gelegen en daardoor kun je zo goed als heel de dag genieten van de zon in de achtertuin, Vanuit de keuken loop je ze de achtertuin in en kom je op het terras onder de grote overkapping. Hier kun je heerlijk met familie of vrienden genieten van de zwoele zomeravonden in je eigen achtertuin. De tuin is verder voorzien van bestrating, gazon en een border.

Algemeen:
- Leuke goed onderhouden en afgewerkte 2-onder-1 kap woning
- Garage
- Kunststof kozijnen met dubbel glas en dakkapel met HR++ glas
- Geheel voorzien van rolluiken
- Keuken met spoeleiland uit 2021
- Gehele vloer op de begane grond vernieuwd in 2021
- Zo goed als nieuwe badkamer uit 2024
- Grote dakkapel uit 2024
- Betonnen verdiepingsvloeren
Deze woning moet je zeker een keer gezien hebben dus je bent van harte welkom voor een bezichtiging.
Tot snel.

Kenmerken