Beschrijving

Welkom bij de Polderstraat 11.
Op een rustige en landelijke locatie in Sprundel staat deze vrijstaande woning op een royaal perceel. Met een woonoppervlakte van circa 112 m² biedt de woning volop ruimte, waaronder drie slaapkamers, een ruime zolder, een serre, garage en berging. De diepe achtertuin grenst direct aan de landerijen en geeft een prachtig vrij uitzicht. De woning is netjes onderhouden, maar kan naar eigen smaak worden gemoderniseerd. Dit maakt het een ideale plek voor wie houdt van rust, ruimte en het buitenleven, met tegelijkertijd alle voorzieningen binnen handbereik.
Begane grond
Zoals gebruikelijk hier ga je niet via de voordeur maar langs achter naar binnen. Via de serre kom je in de ruime keuken van ca. 13m2 die in halfopen verbinding staat met de eetkamer. De keuken staat in een U-opstelling en beschikt over veel kastruimte en diverse inbouwapparatuur, waaronder een koelkast, 4-pits gasfornuis, afzuigkap, dubbele spoelbak en oven. Boven de keuken is nog een klein bergzoldertje.
Vanuit de keuken bereikt u de praktische bijkeuken, waar de aansluitingen voor wasapparatuur zijn geplaatst en waar ook de opstelplaats van de CV-ketel (2007) is. En hier is ook de toiletruimte. Aan de andere zijde van de keuken is de eetkamer. De eetkamer van ca 12,7m2 is lekker licht door het grote raam aan de zijkant. Hierdoor is er genoeg lichtinval. Van de keuken en de eetkamer is natuurlijk ook één grote leefkeuken te maken. Grenzend aan de eetkamer bevindt zich de woonkamer van ca. 20,5m2. Dankzij de grote raampartij aan de voor- en achterzijde is er veel lichtinval en geniet u van een vrij uitzicht. De ruimte voelt sfeervol en knus aan, met voldoende plek voor een zit- en eethoek. Vanuit de eetkamer is er ook toegang tot de hal bij de voordeur. Hier bevindt zich de meterkast (4 groepen) en de trapopgang naar de 1e verdieping. Tevens is er vanuit de eetkamer ook toegang tot de ruime en praktische kelder. Handig voor extra opbergruimte
Op de begane grond vind je ook de ruime badkamer van ca. 7m2, voorzien van ligbad, douche en wastafel. 
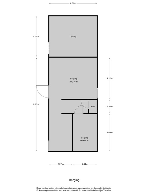
Vanuit de keuken loop je zo de serre in: een lichte ruimte met uitzicht op de tuin, ideaal als tweede zitkamer of speelruimte. Verder beschikt de woning over een aanpandige berging van ca. 18m2 en een royale garage van ca 32m2 met verdieping, zeer geschikt voor hobby’s of extra opslag.
Eerste verdieping
Op de eerste verdieping zijn drie slaapkamers aanwezig, elk met een praktische indeling en veel lichtinval. Daarnaast is er extra bergruimte in de vorm van vaste kasten.
Zolder
Met een vlizotrap bereikt u de ruime zolder. Deze verdieping is momenteel in gebruik als bergruimte. 
Tuin
Rondom de woning ligt een ruime tuin. Aan de voorzijde is de tuin voorzien van sierbestrating en groen, terwijl de achterzijde nog volop mogelijkheden biedt. Het grote weiland maakt dit de perfecte plek voor tuinliefhebbers, het houden van kleinvee of om simpelweg te genieten van het weidse uitzicht over de omliggende landerijen. Op het weiland is nog een berging van damwandplaten in combinatie met 2 paardenstallen aanwezig. Hier dient wel rekening gehouden te worden met sloop/nieuwbouw.
Bijzonderheden
•	Vrijstaande woning met serre, garage en berging
•	Perceelopp 5330m2
•	Woonoppervlakte circa 115 m²
•	Drie slaapkamers en een zolder
•	Badkamer en toilet op de begane grond
•	Serre met uitzicht op de tuin
•	Landelijk gelegen met vrij uitzicht, maar toch dichtbij voorzieningen
•	Grotendeels voorzien van dubbel glas behalve de voordeur, bijkeuken en badkamer. Dit is nog enkel glas.
•	Betonnen begane grond vloer.
•	Houten verdiepingsvloeren
•	Energielabel D

Polderstraat 11 is een woning met potentie: de perfecte basis voor wie rust, ruimte en vrijheid zoekt, en dit graag combineert met de mogelijkheid om de woning naar eigen smaak in te richten.
Wij nodigen je graag uit voor een bezichtiging.

Kenmerken